En savoir plus sur ce bien à vendre à Laval :
Idéalament située dans le quartier de la Gare à Laval, nous vous proposons une maison de type 4 en VEFA.
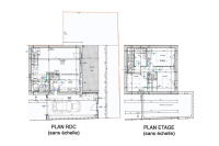
Parfaitement agencée pour un confort optimal, elle vous offrira un séjour, une cuisine, trois chambres ainsi que deux salles d'eau. Vous disposerez également d'une terrasse et d'un garage attenant, le tout dans un emplacement privilégié à proximité immédiate des transports, commerces et services.
La livraison est prévue fin du premier semestre 2026.
Saisisez l'opportunité dans ce programme neuf, que ce soit pour un premier achat ou pour un investissement locatif.
Logements disponibles du T2 au T4.
Classe énergie : non requis.
Son prix est de 365 000 euros TTC, honoraires d'agence à la charge du vendeur.
Pour plus d'informations, contacter l'agence Breton et Jeanneau de Laval au 02 43 53 44 44 en précisant la référence V1867-M-BJ.
Nos agences en Mayenne et en Sarthe vous accompagnent dans l'achat de votre maison sur Laval :
Envie d'en savoir plus sur cette propriété en vente ? Venez visiter ce qui pourrait être votre maison se situant sur Laval dans un avenir proche. Breton & Jeanneau Immobilier est à vos côtés pour vous guider au mieux dans votre projet. Avec une superficie de 84 m², votre prochaine demeure dispose de la place idéale pour accueillir toutes vos idées.
Consultez notre rubrique Trouvez la perle rare avant l'achat de votre maison pour retrouver tous nos conseils.
Caractéristiques techniques : Maison en vente à Laval
Performances énergétiques : Maison en vente à Laval
Logement économe
Logement énergivore
Logement économe
Logement énergivore
Les informations sur les risques auxquels ce bien est exposé sont disponibles sur le site Géorisques : https://www.georisques.gouv.fr



